1. februar yvirtóku Arni og Rakul B. Brattaberg Magnstøðina í Vági frá PF Magn.
Nú fara tey undir at dagføra og nútímansgera Magnstøðina, greiða tey frá í morgun:
Síðani yvirtøkuna hava vit arbeitt saman við dugnaligum samstarvsfeløgum, um at finna tað røttu loysnina til eitt nútíðar stað, har okkara kundar trívast og vit kunnu geva bestu tænastu, umframt at geva okkara dugnaligu starvsfólkum bestu arbeiðsumstøður. Nú byggiloyvi er komið, fara vit víðari við okkara ætlanum og vilja sjálvandi deila hetta við tykkum:
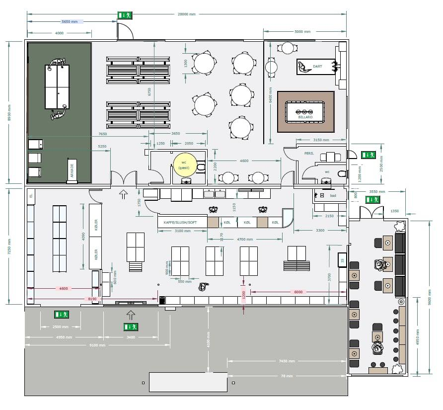
Kioskin verður væl størri við einum breiðum úrvali innan kiosk, gerandisvørur og skundverðir. Í vestara enda verður cafe har vitjandi kunnu njóta alt tað, sum hoyrir til eina nútímans cafe. Afturat hesum verður eitt stórt alrúm, við fleiri ymiskum hentleikum til tey vitjandi.
Okkara ynski er, at nýggja Magn støðin verður eitt møtistað fyri Suðringar og øll vitjandi, sum koma til okkara vøkru oyggj.
Ein spennandi tíð er fyri framman og vónandi eru vit komin á mál á Jóansøku 2026.



Facebook viðmerkingar